Springmount Services Pty Ltd
[seopress_breadcrumbs]



Springmount Services Workspace Refurbishment Project Overview
- Project Name: Springmount Cleaning and Facilities Services
- Type: Workspace Refurbishment
- Size: 200m2
- Team: Leithal Designs, James Miller Builder
Project Details
Springmount Services Pty Ltd has a twenty-year history of providing contract cleaning and facilities services across Australia. The team reached out to Leithal Designs to reinvigorate meeting rooms, the kitchen and reception areas and create additional workstations for their growing team.
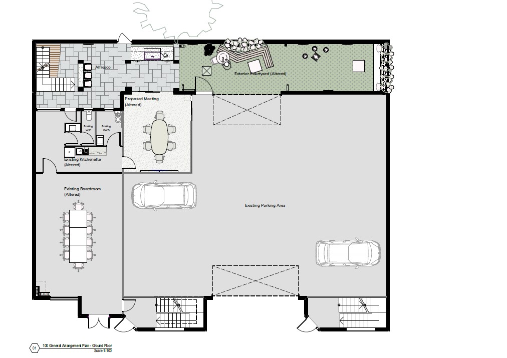
External to the ground floor storage is an enclosed alley that the client wanted to create an outdoor staff breakout area. The client requested a concept to uplift this space and increase its usability – the goal being to use this space for entertaining as well as provide a comfortable spot for employees.
Leithal Designs worked collaboratively with the client to deliver a design that meet the client’s brief. The concept design included a refreshed outdoor entertainment zone, with wooden bench seating, an outdoor built in BBQ area, low maintenance greenery, and artificial grass to give a resort style feel to the area.
The original entrance area occupied a larger space, and the initial brief was to simply reduce the footprint to allow for additional workstations and office spaces. The client’s scope was to move the reception area to an alternate entrance, thereby keeping working groups together and creating more space for additional workstations. Alterations in the Kitchen were requested for a lunchroom where employees could also use this space to collaborate. Modern furniture was proposed for a warm and inviting feel.
Midway through the project, a change in priorities due to some external factors, meant that changes to the scope were to be accommodated; spaces were restored in the plans. The drawings were adjusted to down scale the design to meet the clients’ changing priorities.
The result is a functional refit that aligns with the Springmount brand, with refreshing finishes designed to uplift the working environment. The changes in scope were accommodated whilst balancing the clients’ goals and keeping within budget.
Next Steps
We would love to help bring your vision to life.
Book a no-obligation discovery call today.
Next Steps
We would love to help bring your vision to life.
Book a no-obligation discovery call today.